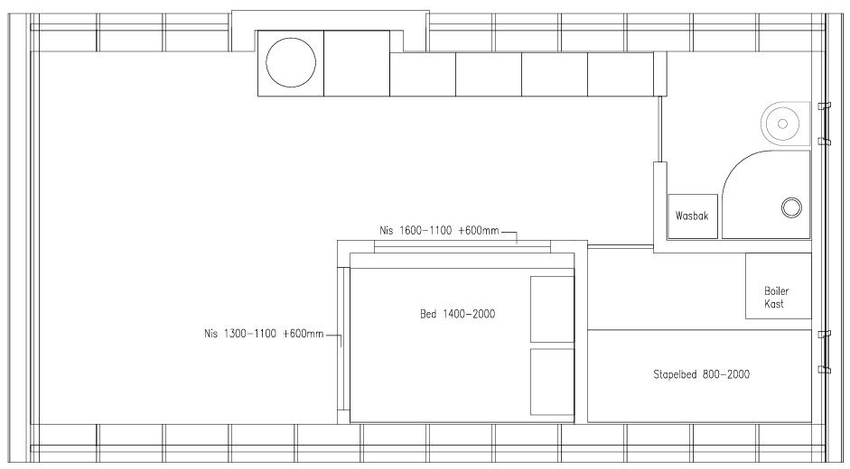
Lengte:
Breedte:
Hoogte:
Oppervlakte:
7,85 m
4,48 m
3,45 m
35 m2
Lengte:
Breedte:
Hoogte:
Oppervlakte:
7,85 m
4,48 m
3,45 m
35 m2

In de maand februari kunt u elke vrijdagmiddag tussen 13:00 en 15:00 uur ons Inspiratiehuis bekijken en uw vragen over onze tiny houses stellen! Kom binnen en ontdek hoe ons unieke bouwsysteem tot leven wordt gebracht in meer dan alleen recreatiewoningen. ๐
Plywood Block Building. Slimmer, sneller, circulair en biobased bouwen voor wonen, zorg en recreatie.
๐ Elke vrijdagmiddag in februari | ๐ Tussen 13:00 en 15:00 uur | ๐ Holwerderweg 19 Dokkum

Ook wanneer het landschap bedekt is met een zachte laag sneeuw, bieden onze pods een luxe en comfortabele overnachting. De winter benadrukt juist de kracht van het ontwerp: warm, duurzaam en volledig afgestemd op ontspanning. Buiten ervaar je stilte en natuur in haar puurste vorm, terwijl je binnen geniet van geborgen comfort en een hoogwaardige afwerking. Zo wordt elk seizoen een uitnodiging om gasten een bijzondere beleving te bieden die bijdraagt aan hogere klanttevredenheid en een aantrekkelijke bezettingsgraad โ zelfs in de wintermaanden.

We zijn aan het einde van 2025 en sluiten vandaag met alle collegaโs het jaar af.
We nemen u graag nog even mee door 2025.

Slimmer, sneller, circulair en biobased bouwen voor Wonen | Zorg | Recreatie