zorg
woning

Mantelzorgwoning van hout – comfort naast de deur

Een Pre-/ Mantelzorgwoning is de oplossing voor zorg aan huis

Een pré-/ mantelzorgwoning van PBB is dé oplossing voor wie zorg wil bieden aan een naaste, zonder afstand te doen van zelfstandigheid. Onze biobased woningen worden turn-key geleverd en zijn verplaatsbaar, flexibel en comfortabel – met een volwaardige badkamer, keuken en vloerverwarming.

Shape

PBB (Pré-)Mantelzorgwoningen

Zorg dichtbij, zonder te verhuizen

Van Ontwerp

Aanpasbaar

Naar Productie

En Plaatsing

Dankzij het innovatieve bouwsysteem zijn PBB (pré-)mantelwoningen in slechts één dag op locatie te plaatsen. De zorgwoning staat op een lichtgewicht schroeffundering en kan vergunningvrij worden geplaatst onder de juiste voorwaarden. Volledig gemaakt van hout en andere circulaire materialen is de woning niet alleen gezond, maar ook duurzaam en toekomstbestendig. Geschikt als tijdelijke zorgoplossing, maar ook als levensloopbestendige aanleunwoning of seniorenwoning. Of het nu gaat om ouders, kinderen of partners: een pré mantelzorgwoning brengt zorg dichterbij, zonder concessies te doen aan privacy en wooncomfort.

Shape
Shape

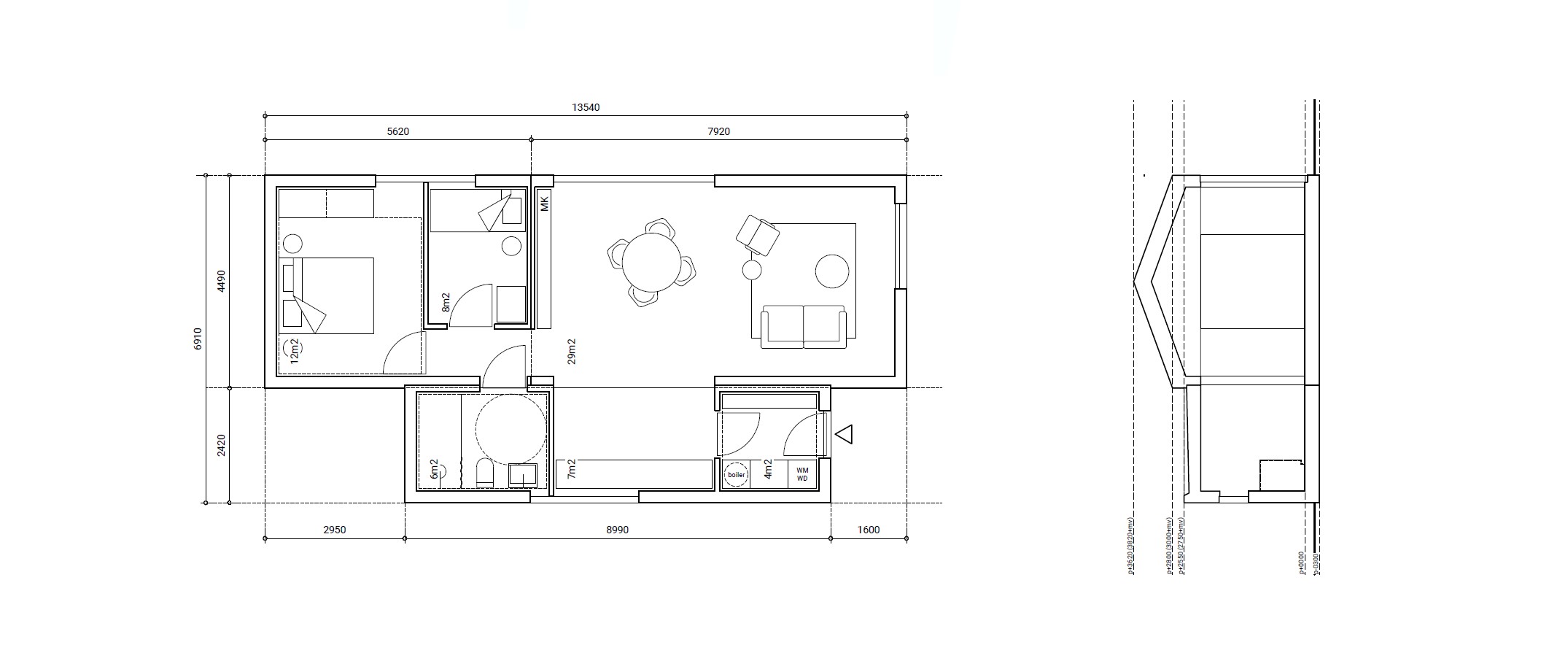
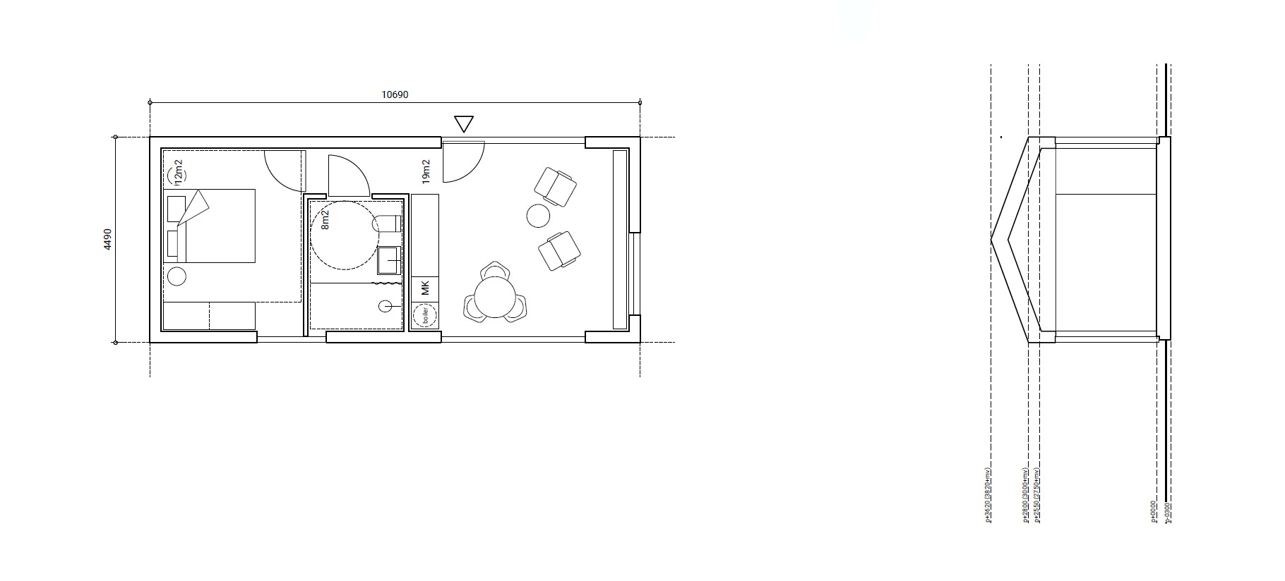
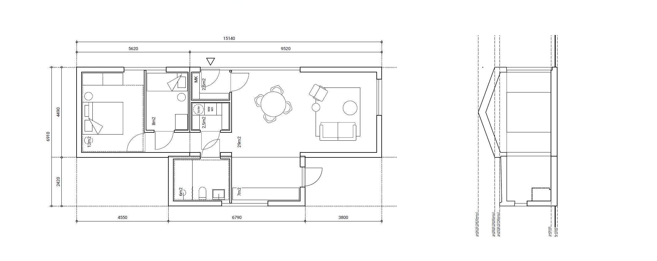
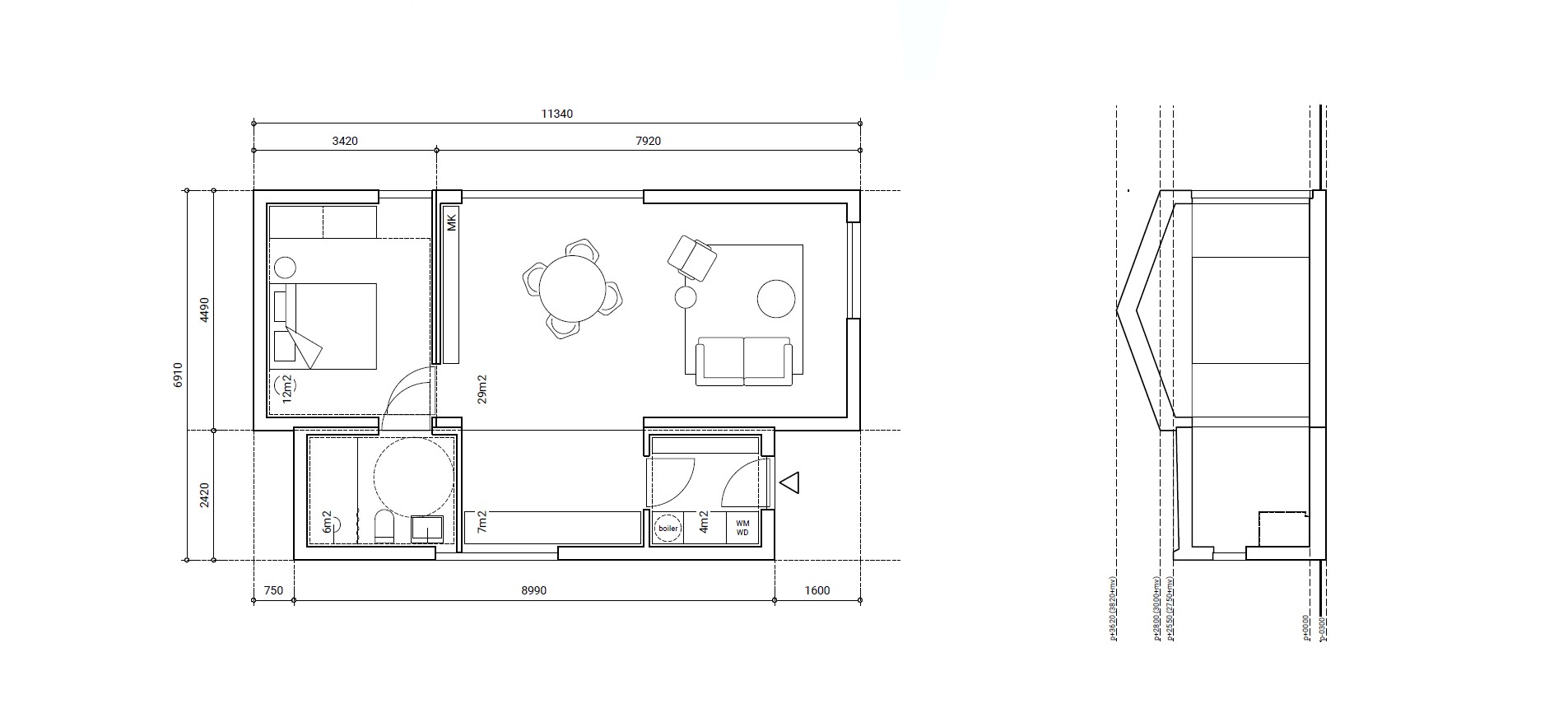
Ontwerpgalerij

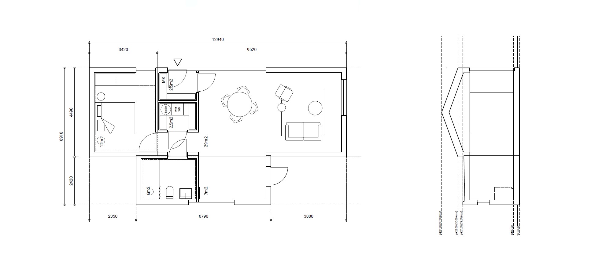
Laat u inspireren door onze voorbeeldontwerpen voor (pré-)mantelzorgwoningen. Zorgvuldig samengesteld om te laten zien hoe comfort, veiligheid en karakter samenkomen in een woning die meebeweegt met de zorgbehoefte. Deze beelden dienen als inspiratie, want elke (pré-)mantelzorgwoning wordt volledig klantspecifiek ingedeeld en vormgegeven — afgestemd op de gebruiker, de zorgsituatie en de omgeving.

De getoonde modellen helpen u visualiseren wat er mogelijk is: gelijkvloers wonen, slimme indelingen, veel daglicht en een warme uitstraling. Van comfortabele (pré-)mantelzorgwoningen voor zelfstandig wonen met ondersteuning tot volwaardige, hoogwaardige oplossingen voor nu én later. Ontworpen met oog voor luxe, comfort en duurzaamheid, energieneutraal en direct instapklaar.

Ontdek de mogelijkheden in onze ontwerpgalerij en ervaar hoe een PBB (pré-)mantelzorgwoning rust, zekerheid en kwaliteit kan bieden. Wilt u meer weten of een ontwerp op maat laten realiseren? Neem contact met ons op voor een persoonlijk adviesgesprek en zet vandaag de eerste stap naar een (pré-)mantelzorgwoning die écht past. Op de projectenpagina staan nog meer klantspecifieke modellen.

Onderstaande ontwerpen zijn gemaakt door Wytse Kamsma.

Plaatsing eerste PBB Pré-mantelzorgwoning

In oktober 2025 is de eerste PBB pré-mantelzorgwoning geplaatst. In de video hieronder ziet u hoe het schakelen van deze modulaire mantelzorgwoning in zijn werk ging. Een soepel en zorgvuldig proces, volledig gericht op comfort en kwaliteit.